Select country or region
ETEK Global website
Français
×
EKM7DC-320-DC-MCCB
EKM7DC-320-DC-MCCB
EKM7DC-320-DC-MCCB
EKM7DC-320-DC-MCCB
EKM7DC-320-DC-MCCB

Disjoncteur à boîtier moulé EKM7 DC MCCB 1500V pour système photovoltaïque

EKM7DC est un disjoncteur à boîtier moulé spécifique au photovoltaïque solaire développé par ETEK Electric, conforme à la norme IEC 60947-2. Il présente une tension de fonctionnement nominale allant jusqu'à 1 500 V CC, une tension d'isolement nominale de 1 500 V, une tension de tenue aux impulsions nominale de 12 kV et une plage de courant nominale de 10 A à 630 A.

● Norme : IEC60947-2
● Pôles : 2P
● Courant nominal : 100-1600 A
● Tension nominale : 1000/1500 V
● Tension d'isolement nominale : 1600 V
● Tension nominale de tenue aux chocs : 12 kV
● Technologie de déclencheur : Magnétique thermique
● Température ambiante : -25...+70 ºC
● Application : photovoltaïque / UPS / batterie / centre de données, etc.

Disjoncteur à boîtier moulé EKM7 DC MCCB 1500V pour système photovoltaïque

Renseignez-vous maintenant PDF

Présentation du produit

EKM7DC est un disjoncteur à boîtier moulé spécifique au photovoltaïque solaire développé par ETEK Electric, conforme à la norme IEC 60947-2. Il présente une tension de fonctionnement nominale allant jusqu'à 1 500 V CC, une tension d'isolement nominale de 1 500 V, une tension de tenue aux impulsions nominale de 12 kV et une plage de courant nominale de 100 A à 1 600 A. Ces disjoncteurs sont capables de couper des courants de court-circuit jusqu'à 20 kA dans des applications à tension continue de 1 500 V.

Largement utilisé dans les circuits principaux des boîtiers de combinaison, des armoires CC et des armoires d'onduleurs, l'EKM7DC offre des fonctions de protection contre les courts-circuits, de protection contre les surcharges et d'isolation. Cela permet d'éviter les pannes du système causées par le courant provenant d'autres circuits passant par des points de court-circuit. Sa taille compacte, son installation facile, sa sécurité, son fonctionnement fiable et sa rentabilité élevée en font un produit parfaitement adapté aux besoins de la production d'énergie photovoltaïque.

Paramètres techniques

Données techniques

Norme IEC60947-2
Modèle EKM7DC-320 EKM7DC-400 EKM7DC-630 EKM7DC-1600
Polonais 2P 3P, 4P
Courant nominal (In) UN 100 125 140 160 180 200 225 250 280 315 250,315,350,400 400 500 630 800,1000,1250,1500,1600A
Tension nominale de fonctionnement (Ue) V, CC 750, 1000, 1200, 1500
Tension d'isolement nominale (Ui) V 1600
Tension nominale de tenue aux chocs (Uimp) kV 12
Pouvoir de coupure en court-circuit
Ics = Icu
kA 750V 85 85 85 50
1000V 50 50 50 30
1200V 35 35 35 15
1500V 20 20 20 10
Technologie des déclencheurs Thermique-magnétique
La vie électrique fois 1000 1000 1000 500
Durée de vie de la machine fois 4000 4000 4000 2500
Distance d'arc mm 50 / 0 (avec couvercle d'extinction d'arc)
Déclencheur instantané 5 po ou 10 po

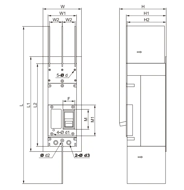
Dimensions

Schéma de circuit

Dimensions
Modèle W W1 W2 L L1 L2 M. M1 F H H1 H2 d1 d2 d3
EKM7DC-320 / 99 38 465 / 245 51 101 28 135 118 / / 10 12,5
EKM7DC-400 148 110 49 605 365 319 76 119 45 178 154 150 8 13 19
EKM7DC-630 148 110 49 605 365 319 76 119 45 178 154 150 8 13 19
EKM7DC-1600

Télécharger les fichiers

Document actuellement disponible en anglais uniquement.

Présentation du produit

EKM7DC est un disjoncteur à boîtier moulé spécifique au photovoltaïque solaire développé par ETEK Electric, conforme à la norme IEC 60947-2. Il présente une tension de fonctionnement nominale allant jusqu'à 1 500 V CC, une tension d'isolement nominale de 1 500 V, une tension de tenue aux impulsions nominale de 12 kV et une plage de courant nominale de 100 A à 1 600 A. Ces disjoncteurs sont capables de couper des courants de court-circuit jusqu'à 20 kA dans des applications à tension continue de 1 500 V.

Largement utilisé dans les circuits principaux des boîtiers de combinaison, des armoires CC et des armoires d'onduleurs, l'EKM7DC offre des fonctions de protection contre les courts-circuits, de protection contre les surcharges et d'isolation. Cela permet d'éviter les pannes du système causées par le courant provenant d'autres circuits passant par des points de court-circuit. Sa taille compacte, son installation facile, sa sécurité, son fonctionnement fiable et sa rentabilité élevée en font un produit parfaitement adapté aux besoins de la production d'énergie photovoltaïque.

Paramètres techniques

Télécharger les fichiers

Envoyer une demande

Entrer en contact

Captcha Code
×
Nous respectons votre vie privée
Nous utilisons des cookies pour vous offrir une meilleure expérience en ligne, analyser et mesurer l'utilisation du site Web et aider dans nos efforts de marketing.
Accepter tout